Гидрораспределитель 24пг73-24 220 В
Артикул: 24пг73-24 В наличииГидpоpаспpеделители 14ПГ73-24, 24ПГ73-24, 34ПГ73-24, 44ПГ73-24, 54ПГ73-24, 54БПГ73-24, 64ПГ73-24 предназначены для изменения, направления, пуска и останова потока рабочей жидкости в гидравлических системах стационарных и стабильных машин.
Гидpоpаспpеделители ПГ-73-24 имеют схемы распределения потока рабочей жидкости согласно ГОСТ 24679-81, работают на минеральных маслах с номинальною тонкостью фильтрации 25мкм (класс чистоты не ниже 13 по ГОСТ17216-71, кинематической вязкостью от 10 до 380 сСт(мм2/с) и температуре окружающей среды от –40С0 до +45С0.
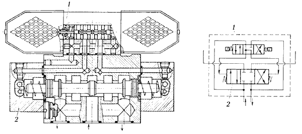
Устройство и принцип действия ПГ73-24 (на примере 44ПГ73-24)

Гидрораспределитель с электрогидравлическим управлением ПГ73-24 состоит из основного гидрораспределителя 2 с гидравлическим управлением и вспомогательного гидрораспределителя 1 с электромагнитным управлением. Основной гидрораспределитель управляет потоком рабочей жидкости гидросистемы, а вспомогательный регулирует поток управления. Такие гидрораспределители применяют в гидроприводах с дистанционным и автоматическим управлением при больших расходах и высоком давлении в гидросистеме, когда применение гидрораспределителей с электромагнитным управлением невозможно.